Skip to content
French Provincial
Contemporary
Current Projects
Display Homes
About
Contact Us
X
Facebook-f
Envelope
Instagram
Whatsapp
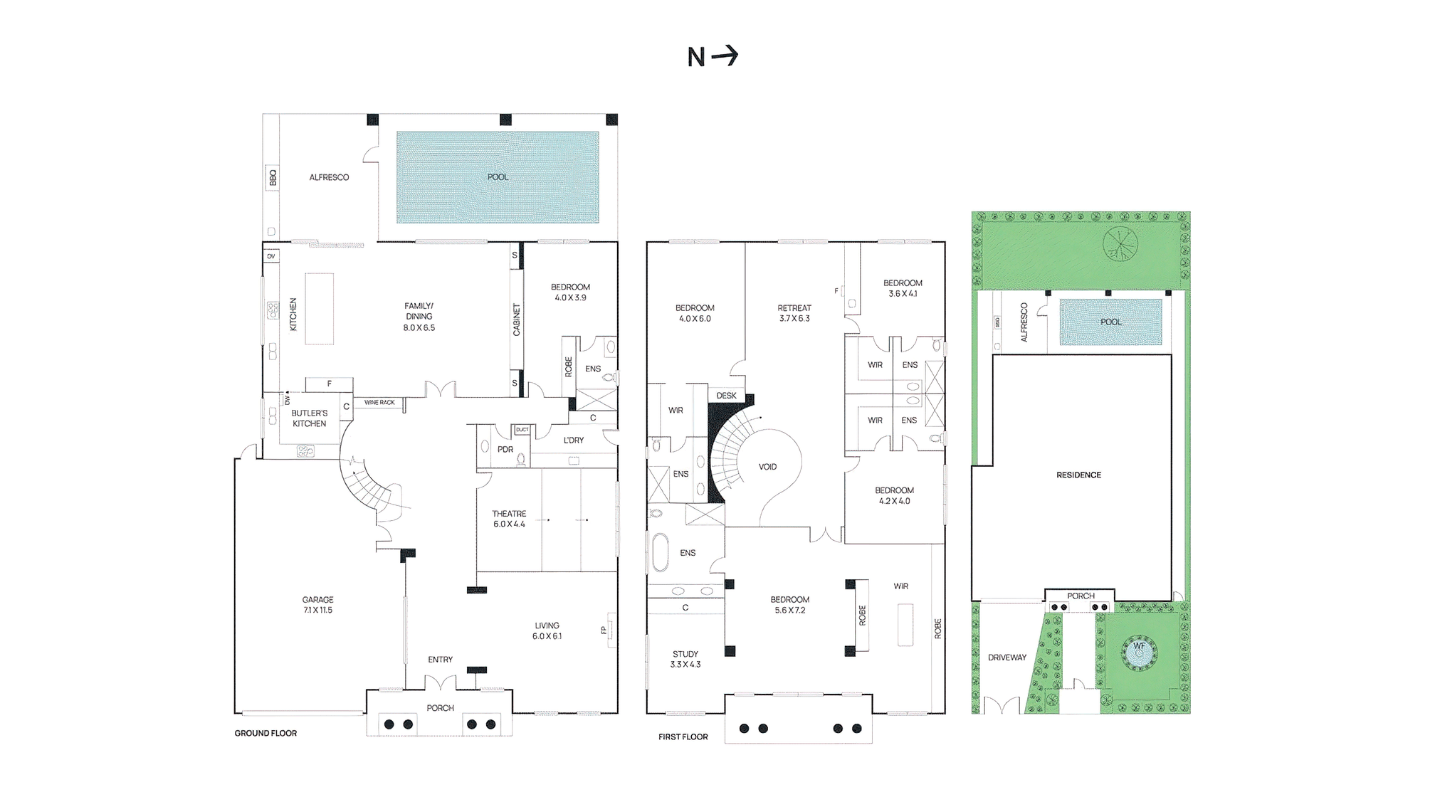
48 Nungerner Street, Balwyn
Home
French Provincial
48 Nungerner Street, Balwyn
Gallery